Bendik – ny
Om Bendik
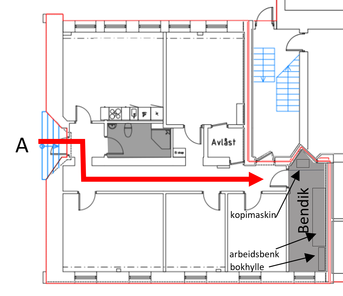
Inngang A fra portrommet, til høyre. Innerst i gangen er et smalt rom med kopimaskin og arbeidsbenk. Et keyboard og en whiteboard på hjul er også lagret her, til bruk i aBord og stoler lagres i gangen utenfor rommet.
6 bord gir plass til 14. Flere stoler kan lånes fra andre rom i A.
| ✱ | Hva | Hvor | Kommentar |
|---|---|---|---|
| Internett | Passord på oppslagstavla i kantinen | Hastighet 100/20 | |
| 2 mørkegrå stofftrukne stoler | også til utlån andre rom | ||
| keyboard | til utlån ander rom | ||
| whiteboard på hjul | til utlån andre rom | ||
| Kost og feiebrett | Ved inngagsdør A |
✱ Må nevnes i bestillingen.
Nødutganger
1) ut i portrommet via inngang A
2) ut i bakgården via trapperom D.
Møteplass: den andre siden av Nordahl Bruns gate.
Rømningsplan ved utgangsdør.
Hvor er hva

Sjekkliste
Kvitter på sjekkliste opphengt i salen, etter bruk av Hulda:
- Tørk av bord, og tørk opp fra gulvet om det er sølt
- Tøm søppel i rom og på WC
- Rydd på plass
- Lånt utstyr settes tilbake på plass
- Tilbakestill radiator
- Lukk vindu
- Skru av lys, inkl. WC
- Påse at dør til A blir låst
- Returner lånte nøkler i postkasse i garderobe
- Meld feil eller mangler til eigedomsnemnda@bls.no
